Работаем
ежедневно
без выходных
09:00 - 20:00
+7 (920) 157 8570
домокомплекты
+7 (919) 054 7326
пиломатериалы

Проект "Венедикт" загородный двухэтажный дом из бруса

В данный момент наблюдаются проблемы со связью, для оперативного решения вопросов пишите в Whatsapp или Telegram
2 421 515 ₽
Общая площадь дома 188.7 м²
Габариты здания 12х11
Профилированный брус 195х142 с чашками 96 м³
Количество жилых комнат 3
1 этаж
Ванная 20.4 м²
Парная 6.5 м²
Бойлерная 5.3 м²
Гостиная 54.5 м²
Тамбур 15.4 м2
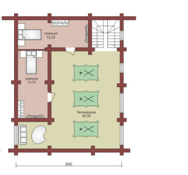
2 этаж
Спальня 13.2 м²
Спальня 13.7 м²
Бильярдная 60.5 м²
Стоимость базового комплекта:
2 421 515 ₽
Возможно изготовление домокомплекта из любого сечения бруса и бревна.
Стоимость сборки: уточняйте. ( )
Базовый древесный комплект
Размер бруса Профилированный брус 195х142 с чашками
Объем бруса 96
Лаги пола брус 2х50х200 (100х200) м.куб 6.24
Брусок 25х50 м.куб 0.78
Доска наката 25х150 (черновой пол) м.куб 4.74
Стропило доск 2х50х200 м.куб 6.16
Контрбрус 50х50 м.куб 0.77
Обрешетка доска 25х100 м.куб 4.85
Подкладочная  доска  50х200 (сосна) м.куб 0.95
Джут, рул 160
Проект дома из профилированного бруса Венедикт оригинален как снаружи, так и внутри. Дополнительные бонусы к большому дому, многофункциональной и удобной планировке – по одному просторному помещению на каждом этаже: бильярд и гостиная. 2 небольшие спальни на втором этаже дополнены скромным домашним кинозалом. Просторная ванная соединена с парной и имеет непосредственный выход к лестнице на второй этаж.