Работаем
ежедневно
без выходных
09:00 - 20:00
+7 (920) 157 8570
домокомплекты
+7 (919) 054 7326
пиломатериалы

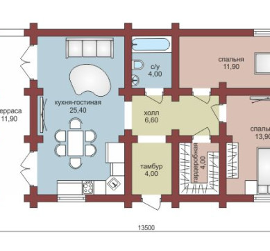
Проект "Таир" одноэтажный дом из бруса с террасой

В данный момент наблюдаются проблемы со связью, для оперативного решения вопросов пишите в Whatsapp или Telegram
1 145 955 ₽
Общая площадь дома 81.7 м²
Габариты здания 13500
Профилированный брус 145х142 с чашками 40 м³
Количество жилых комнат 3
1 этаж
Терраса 11.9 м²
Кухня-гостиная 25.4 м²
С/у 4 м²
Холл 6.6 м²
Тамбур 4 м2
Гардеробная 4 м2
Спальня 11.9 м2
Спальня 13.9 м²
Стоимость базового комплекта:
1 145 955 ₽
Возможно изготовление домокомплекта из любого сечения бруса и бревна.
Стоимость сборки: уточняйте. ( )
Базовый древесный комплект
Размер бруса Профилированный брус 145х142 с чашками
Объем бруса 40
Лаги пола брус 2х50х200 (100х200) м.куб 6.6
Брусок 25х50 м.куб 0.41
Доска наката 25х150 (черновой пол) м.куб 4.2
Стропило доск 2х50х200 м.куб 3
Контрбрус 50х50 м.куб 0.75
Обрешетка доска 25х100 м.куб 2.8
Подкладочная  доска  50х200 (сосна) м.куб 0.78
Джут, рул 90
Нагель, п.м 250