Работаем
ежедневно
без выходных
09:00 - 20:00
+7 (920) 157 8570
домокомплекты, пиломатериалы
опилки и стружка

Проект "Руссо" небольшой двухэтажный дом

В данный момент наблюдаются проблемы со связью, для оперативного решения вопросов пишите в Whatsapp или Telegram
1 316 620 ₽
Общая площадь дома 90.4 м²
Габариты здания 8200
Профилированный брус 145х142 с чашками 51 м³
Количество жилых комнат 5
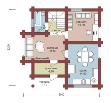
1 этаж
С/у 2.8 м²
Л.холл 4.4 м²
Кабинет 10.6 м²
Кухня 14.5 м²
Гостиная 11.8 м2
Прихожая 4.1 м2
Терраса 3.1 м2
2 этаж
С/у 2.8 м²
Холл 4.9 м²
Спальня 8.8 м²
Спальня 10.6 м²
Спальня 12 м2
Стоимость базового комплекта:
1 316 620 ₽
Возможно изготовление домокомплекта из любого сечения бруса и бревна.
Стоимость сборки: уточняйте. ( )
Базовый древесный комплект
Размер бруса Профилированный брус 145х142 с чашками
Объем бруса 51
Лаги пола брус 2х50х200 (100х200) м.куб 5.4
Брусок 25х50 м.куб 0.68
Доска наката 25х150 (черновой пол) м.куб 2.66
Стропило доск 2х50х200 м.куб 1.92
Контрбрус 50х50 м.куб 0.48
Обрешетка доска 25х100 м.куб 2.8
Подкладочная  доска  50х200 (сосна) м.куб 0.6
Джут, рул 114
Нагель, п.м 350

Похожие модели

Проект "Руссо" небольшой двухэтажный дом — Дом из бруса с террасой, проект "Гелеон" — фото
Дом из бруса с террасой, проект "Гелеон"
Общая площадь дома 62.8 м²
Габариты здания 9.5х8
Профилированный брус 195х142 с чашками 46 м³
Количество жилых комнат 1
1 187 400 ₽
Подробнее
Проект "Руссо" небольшой двухэтажный дом — Дом из бруса с террасой, проект "Гранит" — фото
Дом из бруса с террасой, проект "Гранит"
Общая площадь дома 58.4 м²
Габариты здания 8.5х8
Профилированный брус 195х142 с чашками 46 м³
Количество жилых комнат 3
1 187 400 ₽
Подробнее