Работаем
ежедневно
без выходных
09:00 - 20:00
+7 (920) 157 8570
домокомплекты
+7 (919) 054 7326
пиломатериалы

Проект "Рауль" трехэтажный дом из профилированного бруса

В данный момент наблюдаются проблемы со связью, для оперативного решения вопросов пишите в Whatsapp или Telegram
4 034 320 ₽
Общая площадь дома 428.7 м²
Габариты здания 17500
Профилированный брус 195х142 с чашками 161 м³
Количество жилых комнат 9
1 этаж
С/у 2.5 м²
Бассейн 22.7 м²
Гостиная 56.6 м²
Гардеробная 2.9 м²
Тамбур 2.9 м2
Прихожая 17.9 м2
Комната отдыха 17.9 м2
Парилка 6.5 м²
С/у 3 м2
Терраса 7.5 м2
Котельная 4.3 м²
Холл 3 м²
Кладовая 9.8 м²
Кухня 13.1 м²
Столовая 17.9 м²
Терраса 7.8 м²
Терраса 13.1 м²
2 этаж
Спальня 17.9 м²
Спальня 13.1 м²
Спальня 14.7 м²
Балкон 13.1 м²
Холл 18.6 м²
С/у 6.2 м²
Гардеробная 11.1 м²
С/у 8.3 м²
С/у 8.7 м²
Балкон 5.9 м2
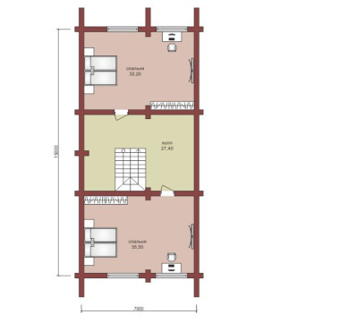
3 этаж
Спальня 32.2 м²
Холл 27.4 м²
Спальня 32.5 м²
Стоимость базового комплекта:
4 034 320 ₽
Возможно изготовление домокомплекта из любого сечения бруса и бревна.
Стоимость сборки: уточняйте. ( )
Базовый древесный комплект
Размер бруса Профилированный брус 195х142 с чашками
Объем бруса 161
Лаги пола брус 2х50х200 (100х200) м.куб 8.9
Брусок 25х50 м.куб 1.11
Доска наката 25х150 (черновой пол) м.куб 9.91
Стропило доск 2х50х200 м.куб 9.22
Контрбрус 50х50 м.куб 1.15
Обрешетка доска 25х100 м.куб 7.55
Подкладочная  доска  50х200 (сосна) м.куб 1.24
Джут, рул 270
Нагель, п.м 500

Похожие модели

Проект "Рауль" трехэтажный дом из профилированного бруса — Афродита — фото
Афродита
Общая площадь дома 428.7 м²
Габариты здания 15х7
Оцилиндрованное бревно 240 с чашками 157 м³
Количество жилых комнат 9
3 793 000 ₽
Подробнее
Проект "Рауль" трехэтажный дом из профилированного бруса — Каррос — фото
Каррос
Общая площадь дома 157.5 м²
Габариты здания 17х11
Профилированный брус 195х142 с чашками 75 м³
3 640 450 ₽
Подробнее