Работаем
ежедневно
без выходных
09:00 - 20:00
+7 (920) 157 8570
домокомплекты
+7 (919) 054 7326
пиломатериалы

Проект "Оскар" дом из бруса с террасой

В данный момент наблюдаются проблемы со связью, для оперативного решения вопросов пишите в Whatsapp или Telegram
2 136 395 ₽
Общая площадь дома 163.7 м²
Габариты здания 11500
Профилированный брус 195х142 с чашками 89 м³
Количество жилых комнат 4
1 этаж
Гостиная 30.6 м²
Бойлерная 3.3 м²
Ванная 8.6 м²
Холл 8.4 м²
Прихожая 4.9 м2
Кухня 15.3 м2
Терраса 11.9 м2
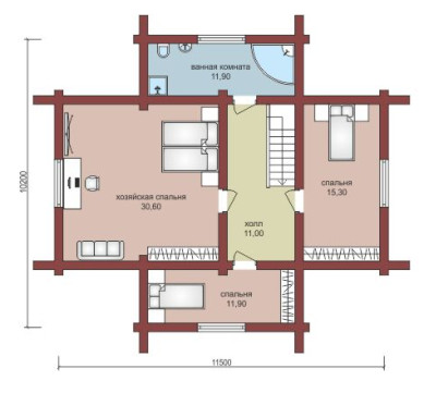
2 этаж
Ванная 11.9 м²
Холл 11 м²
Спальня 30.6 м²
Спальня 15.3 м²
Спальня 11.9 м2
Стоимость базового комплекта:
2 136 395 ₽
Возможно изготовление домокомплекта из любого сечения бруса и бревна.
Стоимость сборки: уточняйте. ( )
Базовый древесный комплект
Размер бруса Профилированный брус 195х142 с чашками
Объем бруса 89
Лаги пола брус 2х50х200 (100х200) м.куб 4.56
Брусок 25х50 м.куб 0.48
Доска наката 25х150 (черновой пол) м.куб 2.8
Стропило доск 2х50х200 м.куб 3
Контрбрус 50х50 м.куб 0.75
Обрешетка доска 25х100 м.куб 3.2
Подкладочная  доска  50х200 (сосна) м.куб 0.72
Джут, рул 149