Работаем
ежедневно
без выходных
09:00 - 20:00
+7 (920) 157 8570
домокомплекты, пиломатериалы

Проект "Ларион" двухэтажный дом из бруса с террасой

В данный момент наблюдаются проблемы со связью, для оперативного решения вопросов пишите в Whatsapp или Telegram
2 516 115 ₽
Общая площадь дома 149.5 м²
Габариты здания 10х12.5
Профилированный брус 195х142 с чашками 100 м³
Количество жилых комнат 5
1 этаж
Терраса 15 м²
Кухня 20.5 м²
Гостиная 25.2 м²
С/у 7.7 м²
Крыльцо 3.7 м2
Прихожая 10.2 м2
Кабинет 10.2 м2
Тамбур 3.4 м²
Кладовая 3.4 м2
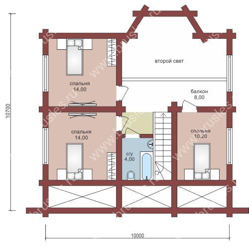
2 этаж
Спальня 14 м²
Балкон 8 м²
Спальня 14 м²
С/у 4 м²
Спальня 10.2 м2
Стоимость базового комплекта:
2 516 115 ₽
Возможно изготовление домокомплекта из любого сечения бруса и бревна.
Стоимость сборки: уточняйте. ( )
Базовый древесный комплект
Размер бруса Профилированный брус 195х142 с чашками
Объем бруса 100
Лаги пола брус 2х50х200 (100х200) м.куб 7.2
Брусок 25х50 м.куб 0.9
Доска наката 25х150 (черновой пол) м.куб 4.75
Стропило доск 2х50х200 м.куб 6.08
Контрбрус 50х50 м.куб 0.76
Обрешетка доска 25х100 м.куб 3.2
Джут, рул 133
Нагель, п.м 550