Работаем
ежедневно
без выходных
09:00 - 20:00
+7 (920) 157 8570
домокомплекты
+7 (919) 054 7326
пиломатериалы

Проект "Платон" двухэтажный дом из профилированного бруса

В данный момент наблюдаются проблемы со связью, для оперативного решения вопросов пишите в Whatsapp или Telegram
2 094 660 ₽
Общая площадь дома 154.9 м²
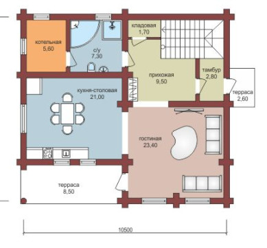
Габариты здания 10500
Профилированный брус 195х142 с чашками 82 м³
Количество жилых комнат 3
1 этаж
Котельная 5.6 м²
С/у 7.3 м²
Кладовая 1.7 м²
Прихожая 9.5 м²
Тамбур 2.8 м2
Гостиная 23.4 м2
Терраса 2.6 м2
Кухня-столовая 21 м²
Терраса 8.5 м2
2 этаж
С/у 13.5 м²
Холл 10 м²
Спальня 21 м²
Гардеробная 4.5 м²
Спальня 23.5 м2
Стоимость базового комплекта:
2 094 660 ₽
Возможно изготовление домокомплекта из любого сечения бруса и бревна.
Стоимость сборки: уточняйте. ( )
Базовый древесный комплект
Размер бруса Профилированный брус 195х142 с чашками
Объем бруса 82
Лаги пола брус 2х50х200 (100х200) м.куб 6.24
Брусок 25х50 м.куб 0.78
Доска наката 25х150 (черновой пол) м.куб 3.87
Стропило доск 2х50х200 м.куб 5.8
Контрбрус 50х50 м.куб 0.73
Обрешетка доска 25х100 м.куб 3.94
Подкладочная  доска  50х200 (сосна) м.куб 0.66
Джут, рул 138
Нагель, п.м 320

Похожие модели

Проект "Платон" двухэтажный дом из профилированного бруса — Аскольд — фото
Аскольд
Общая площадь дома 132.7 м²
Габариты здания 12.5х10
Профилированный брус 195х142 с чашками 80 м³
Количество жилых комнат 2
2 135 945 ₽
Подробнее
Проект "Платон" двухэтажный дом из профилированного бруса — Валентин — фото
Хит продаж
Валентин
Общая площадь дома 155.5 м²
Габариты здания 10х8.5
Профилированный брус 195х142 с чашками 79.2 м³
Количество жилых комнат 4
2 019 790 ₽
Подробнее