Работаем
ежедневно
без выходных
09:00 - 20:00
+7 (920) 157 8570
домокомплекты, пиломатериалы

Проект "Пилан" дом из бруса с террасой и навесом

В данный момент наблюдаются проблемы со связью, для оперативного решения вопросов пишите в Whatsapp или Telegram
2 118 445 ₽
Общая площадь дома 149.8 м²
Габариты здания 8.5х10.5
Профилированный брус 195х142 с чашками 83 м³
Количество жилых комнат 5
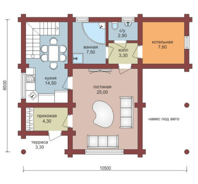
1 этаж
Гостиная 25 м²
Кухня 14.5 м²
Котельная 7.6 м²
Холл 3.3 м2
С/у 2.9 м2
Ванная 7.5 м2
Прихожая 4.4 м²
Терраса 3.3 м2
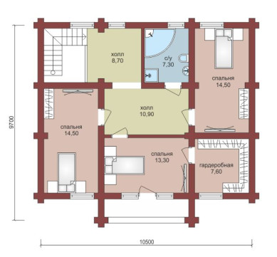
2 этаж
Спальня 14.5 м²
Холл 8.7 м²
С/у 7.3 м²
Холл 10.9 м²
Спальня 13.3 м²
Спальня 14.5 м²
Гардеробная 7.6 м2
Стоимость базового комплекта:
2 118 445 ₽
Возможно изготовление домокомплекта из любого сечения бруса и бревна.
Стоимость сборки: уточняйте. ( )
Базовый древесный комплект
Размер бруса Профилированный брус 195х142 с чашками
Объем бруса 83
Лаги пола брус 2х50х200 (100х200) м.куб 6.6
Брусок 25х50 м.куб 0.83
Доска наката 25х150 (черновой пол) м.куб 3.63
Стропило доск 2х50х200 м.куб 5.04
Контрбрус 50х50 м.куб 0.63
Обрешетка доска 25х100 м.куб 4.2
Подкладочная  доска  50х200 (сосна) м.куб 0.59
Джут, рул 140
Нагель, п.м 350