Работаем
ежедневно
без выходных
09:00 - 20:00
+7 (920) 157 8570
домокомплекты
+7 (919) 054 7326
пиломатериалы

Проект "Милад" дом из бруса с балконом и 2 террасами

В данный момент наблюдаются проблемы со связью, для оперативного решения вопросов пишите в Whatsapp или Telegram
2 696 165 ₽
Общая площадь дома 219.4 м²
Габариты здания 1300
Профилированный брус 195х142 с чашками 105 м³
Количество жилых комнат 4
1 этаж
Терраса 14.1 м²
Гостиная 23.5 м²
Холл 17.2 м²
Кухня 17 м²
С/у 5.7 м2
Прихожая 22.7 м2
Котельная 8.4 м2
Терраса 8.4 м2
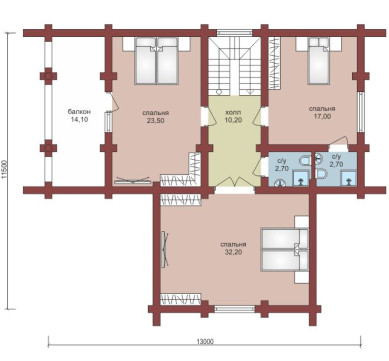
2 этаж
Спальня 23.5 м²
Холл 10.2 м²
Спальня 17 м²
Спальня 32.2 м²
С/у 2.7 м²
С/у 2.7 м²
Балкон 14.1 м2
Стоимость базового комплекта:
2 696 165 ₽
Возможно изготовление домокомплекта из любого сечения бруса и бревна.
Стоимость сборки: уточняйте. ( )
Базовый древесный комплект
Размер бруса Профилированный брус 195х142 с чашками
Объем бруса 105
Лаги пола брус 2х50х200 (100х200) м.куб 7.68
Брусок 25х50 м.куб 0.96
Доска наката 25х150 (черновой пол) м.куб 5.49
Стропило доск 2х50х200 м.куб 7.64
Контрбрус 50х50 м.куб 0.96
Обрешетка доска 25х100 м.куб 5.55
Подкладочная  доска  50х200 (сосна) м.куб 1.03
Джут, рул 175
Нагель, п.м 400