Работаем
ежедневно
без выходных
09:00 - 20:00
+7 (920) 157 8570
домокомплекты
+7 (919) 054 7326
пиломатериалы

Проект "Дональд" дом из профилированного бруса с мансардой

В данный момент наблюдаются проблемы со связью, для оперативного решения вопросов пишите в Whatsapp или Telegram
2 378 715 ₽
Общая площадь дома 159.7 м2
Габариты здания 8.4х8.4
Профилированный брус 195х192 с чашками 98 м3
Количество жилых комнат 4
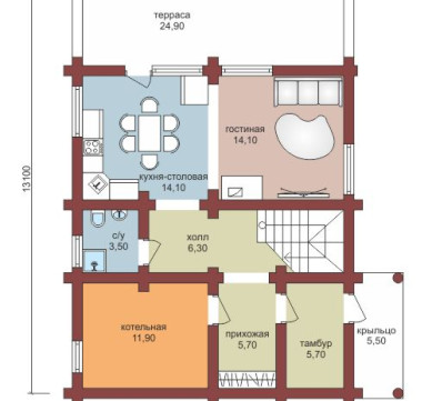
1 этаж
Терраса 24.9 м2
Кухня-столовая 14.1 м2
С/у 3.5 м2
Гостиная 14.1 м2
Холл 6.3 м2
Котельная 11.9 м2
Прихожая 5.7 м2
Тамбур 5.7 м2
Крыльцо 5.5 м2
2 этаж
Спальня 20.7 м²
Холл 10.7 м²
С/у 4 м²
Спальня 10.5 м²
Спальня 9.7 м²
Стоимость базового комплекта:
2 378 715 ₽
Возможно изготовление домокомплекта из любого сечения бруса и бревна.
Стоимость сборки: уточняйте. ( )
Базовый древесный комплект
Размер бруса Профилированный брус 195х192 с чашками
Объем бруса 98
Лаги пола брус 2х50х200 (100х200) м.куб 7.2
Брусок 25х50 м.куб 0.9
Доска наката 25х150 (черновой пол) м.куб 3.36
Стропило доск 2х50х200 м.куб 2.76
Контрбрус 50х50 м.куб 0.51
Обрешетка доска 25х100 м.куб 3.4
Подкладочная  доска  50х200 (сосна) м.куб 0.72
Джут, рул 124
Нагель, п.м 450