Работаем
ежедневно
без выходных
09:00 - 20:00
+7 (920) 157 8570
домокомплекты, пиломатериалы
опилки и стружка

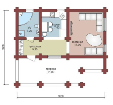
Проект "Гелеон" одноэтажный дом из бруса с террасой

В данный момент наблюдаются проблемы со связью, для оперативного решения вопросов пишите в Whatsapp или Telegram
1 187 400 ₽
Общая площадь дома 62.8 м²
Габариты здания 9.5х8
Профилированный брус 195х142 с чашками 46 м³
Количество жилых комнат 1
1 этаж
С/у 6.2 м²
Кухня 7.6 м²
Прихожая 9.3 м²
Терраса 21.8 м²
Гостиная 17.9 м2
Стоимость базового комплекта:
1 187 400 ₽
Возможно изготовление домокомплекта из любого сечения бруса и бревна.
Стоимость сборки: уточняйте. ( )
Базовый древесный комплект
Размер бруса Профилированный брус 195х142 с чашками
Объем бруса 46
Лаги пола брус 2х50х200 (100х200) м.куб 3.12
Брусок 25х50 м.куб 0.39
Доска наката 25х150 (черновой пол) м.куб 1.7
Стропило доск 2х50х200 м.куб 4.08
Контрбрус 50х50 м.куб 0.51
Обрешетка доска 25х100 м.куб 2.6
Подкладочная  доска  50х200 (сосна) м.куб 0.54
Джут, рул 78
Нагель, п.м 300
Проект дома из профилированного бруса Гелеон предлагает комфортный минимум. Отличительная черта – высокие потолки, один уровень и отсутствие спальных комнат как таковых. Просторная гостиная, оборудованная мягкой мебелью, прекрасно справляется с функцией спальни, комнаты для отдыха, просмотра ТВ и общения. Вместительная прихожая, компактная кухня, довольно свободный санузел и большая крытая терраса делают проект полноценным местом для отдыха и проживания в любое время года.

Похожие модели

Проект "Гелеон" одноэтажный дом из бруса с террасой — Дом из бруса с террасой, проект "Гранит" — фото
Дом из бруса с террасой, проект "Гранит"
Общая площадь дома 58.4 м²
Габариты здания 8.5х8
Профилированный брус 195х142 с чашками 46 м³
Количество жилых комнат 3
1 187 400 ₽
Подробнее
Проект "Гелеон" одноэтажный дом из бруса с террасой — Дом из бруса с террасой, проект "Таир" — фото
Дом из бруса с террасой, проект "Таир"
Общая площадь дома 81.7 м²
Габариты здания 13500
Профилированный брус 145х142 с чашками 40 м³
Количество жилых комнат 3
1 145 955 ₽
Подробнее