Работаем
ежедневно
без выходных
09:00 - 20:00
+7 (920) 157 8570
домокомплекты, пиломатериалы
опилки и стружка

Проект "Филат" двухэтажный дом из профилированного бруса

В данный момент наблюдаются проблемы со связью, для оперативного решения вопросов пишите в Whatsapp или Telegram
1 509 785 ₽
Общая площадь дома 136.7 м²
Габариты здания 12000
Профилированный брус 145х142 с чашками 56 м³
Количество жилых комнат 4
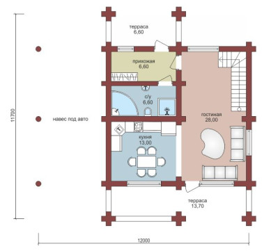
1 этаж
Гостиная 28 м²
Кухня 13 м²
Терраса 6.6 м²
Прихожая 6.6 м2
С/у 6.6 м2
Терраса 13.7 м2
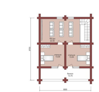
2 этаж
TV-зал 22.5 м²
Спальня 13 м²
Спальня 13 м²
Балкон 13.7 м2
Стоимость базового комплекта:
1 509 785 ₽
Возможно изготовление домокомплекта из любого сечения бруса и бревна.
Стоимость сборки: уточняйте. ( )
Базовый древесный комплект
Размер бруса Профилированный брус 145х142 с чашками
Объем бруса 56
Лаги пола брус 2х50х200 (100х200) м.куб 6.72
Брусок 25х50 м.куб 0.84
Доска наката 25х150 (черновой пол) м.куб 3.2
Стропило доск 2х50х200 м.куб 4.32
Контрбрус 50х50 м.куб 0.54
Обрешетка доска 25х100 м.куб 3.8
Подкладочная  доска  50х200 (сосна) м.куб 0.36
Джут, рул 125
Нагель, п.м 450