Работаем
ежедневно
без выходных
09:00 - 20:00
+7 (920) 157 8570
домокомплекты
+7 (919) 054 7326
пиломатериалы

Проект "Еремей" дом из бруса площадью 150 кв.м.

В данный момент наблюдаются проблемы со связью, для оперативного решения вопросов пишите в Whatsapp или Telegram
2 450 975 ₽
Общая площадь дома 148.7 м²
Габариты здания 10.5х10
Профилированный брус 195х142 с чашками 107 м³
Количество жилых комнат 4
1 этаж
Терраса 3 м²
Тамбур 3 м²
Прихожая 4.8 м²
С/у 4.8 м²
Кабинет 17.8 м2
Холл 3.9 м2
Кухня 17.9 м2
Гостиная 29.7 м²
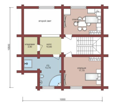
2 этаж
Кладовая 3.9 м²
Холл 10.6 м²
С/у 13.7 м²
Спальня 17.7 м²
Спальня 17.9 м2
Стоимость базового комплекта:
2 450 975 ₽
Возможно изготовление домокомплекта из любого сечения бруса и бревна.
Стоимость сборки: уточняйте. ( )
Базовый древесный комплект
Размер бруса Профилированный брус 195х142 с чашками
Объем бруса 107
Лаги пола брус 2х50х200 (100х200) м.куб 7.68
Брусок 25х50 м.куб 0.96
Доска наката 25х150 (черновой пол) м.куб 5.25
Стропило доск 2х50х200 м.куб 7.2
Контрбрус 50х50 м.куб 0.9
Обрешетка доска 25х100 м.куб 3.8
Подкладочная  доска  50х200 (сосна) м.куб 0.84
Джут, рул 179
Нагель, п.м 450
Проект Еремей – двухэтажный дом из профилированного бруса с большим процентом остекления. Светлые просторные помещения, тщательно продуманная планировка, максимальный перечень функциональных помещений для комфортного проживания выделяет его из ряда подобных. Первый этаж занимает большая гостиная с вторым светом, рабочий кабинет и кухня, а также целый ряд подсобных помещений. На втором обустроена зона отдыха: две спальни, санузел, холл.