Работаем
ежедневно
без выходных
09:00 - 20:00
+7 (920) 157 8570
домокомплекты, пиломатериалы
опилки и стружка

Проект "Дорофей" дом из профилированного бруса с гаражом

В данный момент наблюдаются проблемы со связью, для оперативного решения вопросов пишите в Whatsapp или Telegram
2 802 455 ₽
Общая площадь дома 275.3 м²
Габариты здания 10.7х10.7
Профилированный брус 145х142 с чашками 103 м³
Количество жилых комнат 6
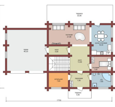
1 этаж
Гараж 46.2 м²
Терраса 33.9 м²
Терраса 5.9 м²
Гостиная 21.9 м²
Холл 4.8 м2
Холл 13.9 м2
Прихожая 7.9 м2
Котельная 7.8 м2
С/у 7.8 м2
Гостевая 7.8 м2
Кухня-столовая 16.3 м2
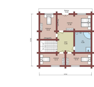
2 этаж
Спальня 16.3 м²
Спальня 21.9 м²
Холл 13.9 м²
С/у 12.8 м²
Спальня 12.1 м²
Спальня 12.1 м²
Балкон 12 м²
Стоимость базового комплекта:
2 802 455 ₽
Возможно изготовление домокомплекта из любого сечения бруса и бревна.
Стоимость сборки: уточняйте. ( )
Базовый древесный комплект
Размер бруса Профилированный брус 145х142 с чашками
Объем бруса 103
Лаги пола брус 2х50х200 (100х200) м.куб 11.52
Брусок 25х50 м.куб 1.44
Доска наката 25х150 (черновой пол) м.куб 6.05
Стропило доск 2х50х200 м.куб 11.28
Контрбрус 50х50 м.куб 0.9
Обрешетка доска 25х100 м.куб 5.2
Подкладочная  доска  50х200 (сосна) м.куб 1.14
Джут, рул 230
Нагель, п.м 700
Проект Дорофей в первую очередь подойдет тем, кто мечтает о просторном двухэтажном загородном коттедже элитного класса со всеми удобствами. Наличие гаража, крытой террасы и балкона позволяет не только наслаждаться свежим воздухом, но и надлежащим способом хранить транспортные средства в любое время года. Наличие котельной говорит о возможности эксплуатации жилых помещений круглый год. Две больших спальни и две спальни меньшего размера с выходом в квадратный холл занимают все пространство второго этажа. Наличие полноценного санузла на каждом уровне – приятный бонус.