Работаем
ежедневно
без выходных
09:00 - 20:00
+7 (920) 157 8570
домокомплекты, пиломатериалы

Проект "Даниил" двухэтажный коттедж из бруса с террасой и балконом

В данный момент наблюдаются проблемы со связью, для оперативного решения вопросов пишите в Whatsapp или Telegram
2 425 585 ₽
Общая площадь дома 184.4 м²
Габариты здания 10.8х10.3
Профилированный брус 195х142 с чашками 97 м³
Количество жилых комнат 4
1 этаж
Кухня-гостиная 26.4 м²
Холл 17.3 м²
Прихожая 8.3 м²
Терраса 20.8 м²
С/у 3.8 м2
Котельная 3.8 м2
Кабинет 17.3 м2
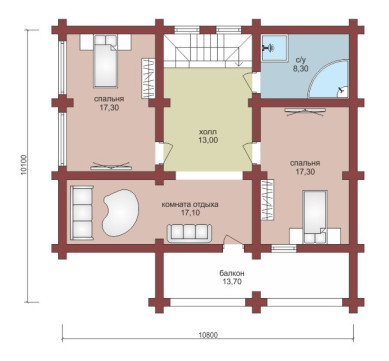
2 этаж
Спальня 17.3 м²
Спальня 17.3 м²
Комната отдыха 17.1 м²
Холл 13 м²
С/у 8.3 м²
Балкон 13.7 м2
Стоимость базового комплекта:
2 425 585 ₽
Возможно изготовление домокомплекта из любого сечения бруса и бревна.
Стоимость сборки: уточняйте. ( )
Базовый древесный комплект
Размер бруса Профилированный брус 195х142 с чашками
Объем бруса 97
Лаги пола брус 2х50х200 (100х200) м.куб 6.32
Брусок 25х50 м.куб 0.79
Доска наката 25х150 (черновой пол) м.куб 4.61
Стропило доск 2х50х200 м.куб 6.04
Контрбрус 50х50 м.куб 0.63
Обрешетка доска 25х100 м.куб 4.4
Подкладочная  доска  50х200 (сосна) м.куб 1.08
Джут, рул 144
Нагель, п.м 300
Проект дома из профилированного бруса Даниил – воплощение мечты о комфортабельном загородном коттедже для постоянного проживания. До мелочей продуманная планировка предлагает массу зон для отдыха, общения, работы. Изюминка проекта – большая крытая терраса и балкон. Наличие котельной позволяет использовать дом как для сезонного, так и для постоянного проживания. Сложная архитектура придает индивидуальность, а большой процент остекления делает пространство внутри светлее и уютнее.