Работаем
ежедневно
без выходных
09:00 - 20:00
+7 (920) 157 8570
домокомплекты, пиломатериалы
опилки и стружка

Проект "Богдан" загородный двухэтажный дом из бруса

В данный момент наблюдаются проблемы со связью, для оперативного решения вопросов пишите в Whatsapp или Telegram
1 592 770 ₽
Общая площадь дома 145.6 м²
Габариты здания 8.7х8.4
Профилированный брус 145х142 с чашками 63 м³
Количество жилых комнат 4
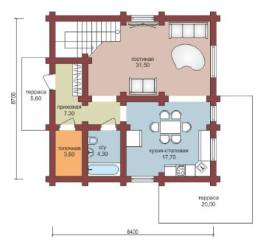
1 этаж
Терраса 5.6 м2
Прихожая 7.3 м2
Топочная 3.6 м2
С/у 4.3 м2
Кухня-столовая 17.7 м2
2 этаж
Спальня 20.7 м²
Холл 10.7 м²
С/у 4 м²
Спальня 10.5 м²
Спальня 9.7 м²
Стоимость базового комплекта:
1 592 770 ₽
Возможно изготовление домокомплекта из любого сечения бруса и бревна.
Стоимость сборки: уточняйте. ( )
Базовый древесный комплект
Размер бруса Профилированный брус 145х142 с чашками
Объем бруса 63
Лаги пола брус 2х50х200 (100х200) м.куб 6.24
Брусок 25х50 м.куб 0.78
Доска наката 25х150 (черновой пол) м.куб 2.16
Стропило доск 2х50х200 м.куб 2.16
Контрбрус 50х50 м.куб 0.54
Обрешетка доска 25х100 м.куб 2.8
Подкладочная  доска  50х200 (сосна) м.куб 0.6
Джут, рул 142
Нагель, п.м 350
Внешне домокомплект  из профилированного бруса Богдан больше напоминает неприступную крепость. Что очень ценно для загородного коттеджа. Ведь граница между визуальной и реальной неприступностью здания призрачна. Первый этаж геометрически верно и строго поделен на 3 функциональные зоны: кухня, гостиная, санузел. В холл второго этажа можно попасть по лестнице. Отсюда открываются двери в две одинарных и одну двойную спальню.

Похожие модели

Проект "Богдан" загородный двухэтажный дом из бруса — Дом из бруса, проект "Антип" — фото
Дом из бруса, проект "Антип"
Общая площадь дома 152.7 м²
Габариты здания 10х10
Профилированный брус 145х142 с чашками 60.62 м³
Количество жилых комнат 4
1 688 852 ₽
Подробнее
Проект "Богдан" загородный двухэтажный дом из бруса — Дом из бруса, проект "Бруно" — фото
Дом из бруса, проект "Бруно"
Общая площадь дома 60 м²
Габариты здания 10х7
Профилированный брус 145х142 с чашками 38.4 м³
Количество жилых комнат 2
1 490 505 ₽
Подробнее