Работаем
ежедневно
без выходных
09:00 - 20:00
+7 (920) 157 8570
домокомплекты
+7 (919) 054 7326
пиломатериалы

Проект "Аскольд" дом из бруса с мансардным этажом

В данный момент наблюдаются проблемы со связью, для оперативного решения вопросов пишите в Whatsapp или Telegram
2 135 945 ₽
Общая площадь дома 132.7 м²
Габариты здания 12.5х10
Профилированный брус 195х142 с чашками 80 м³
Количество жилых комнат 2
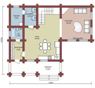
1 этаж
Гостевая 22.5 м²
Холл 34.6 м²
Душевая 4.8 м²
Парная 4.8 м²
С/у 3 м2
Прихожая 4.8 м2
Терраса 12.6 м2
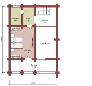
2 этаж
Кладовая 4.8 м²
Холл 4.8 м²
Балкон 5.6 м²
Спальня 17.8 м²
Балкон 12.6 м²
Стоимость базового комплекта:
2 135 945 ₽
Возможно изготовление домокомплекта из любого сечения бруса и бревна.
Стоимость сборки: уточняйте. ( )
Базовый древесный комплект
Размер бруса Профилированный брус 195х192 с чашками
Объем бруса 80
Лаги пола брус 2х50х200 (100х200) м.куб 7.44
Брусок 25х50 м.куб 0.93
Доска наката 25х150 (черновой пол) м.куб 4.36
Стропило доск 2х50х200 м.куб 5.76
Контрбрус 50х50 м.куб 0.72
Обрешетка доска 25х100 м.куб 4.5
Подкладочная  доска  50х200 (сосна) м.куб 0.68
Джут, рул 134
Нагель, п.м 300
Просторная спальная комната с выходом на широкий крытый балкон на втором этаже – оригинальное решение для зоны отдыха. При этом первый этаж проекта дома из профилированного бруса Аскольд представляет собой зону для отдыха, общения, приема пищи и просто приятного времяпровождения в гостиной, парной или на крытой террасе. Архитектурная легкость и ажурность достигнута за счет одинаковых по площади и конфигурации балкона и крытой террасы.