Работаем
ежедневно
без выходных
09:00 - 20:00
+7 (920) 157 8570
домокомплекты
+7 (919) 054 7326
пиломатериалы

Проект "Антип" из профилированного бруса

В данный момент наблюдаются проблемы со связью, для оперативного решения вопросов пишите в Whatsapp или Telegram
1 688 852 ₽
Общая площадь дома 152.7 м²
Габариты здания 10х10
Профилированный брус 145х142 с чашками 60.62 м³
Количество жилых комнат 4
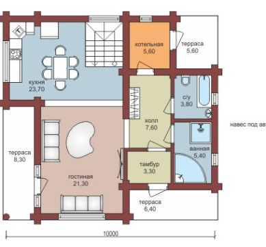
1 этаж
Гостиная 21.3 м²
Кухня 23.7 м²
Котельная 5.6 м²
Терраса 5.6 м²
Холл 7.6 м2
С/у 3.8 м2
Ванная 5.4 м2
Тамбур 3.3
Терраса 6.4 м2
Терраса 8.3 м2
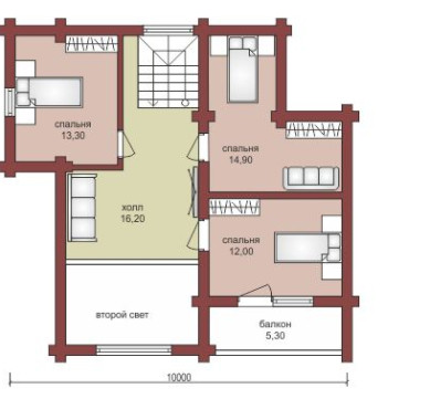
2 этаж
Спальня 13.3 м²
Холл 16.2 м²
Спальня 14.9 м²
Спальня 12 м²
Балкон 5.3 м2
Стоимость базового комплекта:
1 688 852 ₽
Возможно изготовление домокомплекта из любого сечения бруса и бревна.
Стоимость сборки: уточняйте. ( )
Базовый древесный комплект
Размер бруса Профилированный брус 145х142 с чашками
Объем бруса 60.62
Лаги пола брус 2х50х200 (100х200) м.куб 7.2
Брусок 25х50 м.куб 0.9
Доска наката 25х150 (черновой пол) м.куб 5
Стропило доск 2х50х200 м.куб 5.52
Контрбрус 50х50 м.куб 0,69
Обрешетка доска 25х100 м.куб 3.4
Подкладочная  доска  50х200 (сосна) м.куб 0.405
Джут, рул 110
Нагель, п.м 600
Проект 4-хкомнатного дома из профилированного бруса Антип общей площадью 152,7 м2 – прекрасное решение для обустройства полноценного семейного очага или загородного дома для сезонного проживания. Архитектура домокомплекта из профилированного бруса напоминает швейцарские шале. Проект удовлетворяем самым взыскательным требованиям в плане эргономики и комфорта. Нижний этаж для приятного общения, отдыха и времяпровождения за любимым хобби или в кругу друзей. А верхний – для сна.