Работаем
ежедневно
без выходных
09:00 - 20:00
+7 (920) 157 8570
домокомплекты
+7 (919) 054 7326
пиломатериалы

Проект "Симона" двухэтажный дом из бревна с балконом и навесом

В данный момент наблюдаются проблемы со связью, для оперативного решения вопросов пишите в Whatsapp или Telegram
2 117 058 ₽
Общая площадь дома 149.8 м²
Габариты здания 10500
Оцилиндрованное бревно 240 с чашками 88.205 м³
Количество жилых комнат 5
1 этаж
Гостиная 25 м²
Кухня 14.5 м²
Котельная 7.6 м²
Холл 3.3 м2
С/у 2.9 м2
Ванная 7.5 м2
Прихожая 4.4 м²
Терраса 3.3 м2
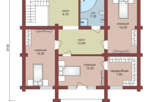
2 этаж
Спальня 14.5 м²
Холл 8.7 м²
С/у 7.3 м²
Холл 10.9 м²
Спальня 15.4 м²
Спальня 13.3 м²
Гардеробная 7.6 м2
Стоимость базового комплекта:
2 117 058 ₽
Возможно изготовление домокомплекта из любого сечения бруса и бревна.
Стоимость сборки: уточняйте. ( )
Базовый древесный комплект
Размер бруса Оцилиндрованное бревно 240 с чашками
Объем бруса 88.205
Лаги пола брус 2х50х200 (100х200) м.куб 5.28
Брусок 25х50 м.куб 0.66
Доска наката 25х150 (черновой пол) м.куб 3.76
Стропило доск 2х50х200 м.куб 6.48
Контрбрус 50х50 м.куб 0.72
Обрешетка доска 25х100 м.куб 2.79
Подкладочная  доска  50х200 (сосна) м.куб 0.6
Джут, рул 84
Нагель, п.м 400