Работаем
ежедневно
без выходных
09:00 - 20:00
+7 (920) 157 8570
домокомплекты
+7 (919) 054 7326
пиломатериалы

Проект "Валерия" дом из оцилиндрованного бревна с террасой

В данный момент наблюдаются проблемы со связью, для оперативного решения вопросов пишите в Whatsapp или Telegram
1 915 050 ₽
Общая площадь дома 154.9 м²
Габариты здания 10.5х9.5
Оцилиндрованное бревно 240 с чашками 82.23 м³
Количество жилых комнат 3
1 этаж
Гостиная 23.4 м²
Кухня-столовая 21 м²
Котельная 5.6 м²
Тамбур 2.8 м2
С/у 7.3 м2
Кладовая 1.7 м2
Прихожая 9.5 м²
Терраса 8.5 м2
Терраса 2.6 м2
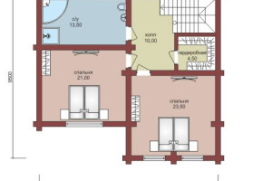
2 этаж
Спальня 21 м²
Холл 10 м²
С/у 13.5 м²
Гардеробная 4.5 м²
Спальня 23.5 м²
Стоимость базового комплекта:
1 915 050 ₽
Возможно изготовление домокомплекта из любого сечения бруса и бревна.
Стоимость сборки: уточняйте. ( )
Базовый древесный комплект
Размер бруса Оцилиндрованное бревно 240 с чашками
Объем бруса 82.23
Лаги пола брус 2х50х200 (100х200) м.куб 6.48
Брусок 25х50 м.куб 0.81
Доска наката 25х150 (черновой пол) м.куб 3.89
Стропило доск 2х50х200 м.куб 5.4
Контрбрус 50х50 м.куб 0.54
Обрешетка доска 25х100 м.куб 2.64
Подкладочная  доска  50х200 (сосна) м.куб 0.6
Джут, рул 78
Нагель, п.м 350
В основе планировки проекта Валерия лежат три квадрата: кухня-столовая, гостиная и прихожая. Небольшой прямоугольник отведен под котельную и санузел. Планировка второго этажа аналогична. Три больших квадрата – это две спальни и холл. А прямоугольник занимает просторный санузел. Балконов нет, но есть терраса с выходом из гостиной и небольшая терраска на входе. Эстетику деревянного зодчества подчеркивает выступ гостиной с отдельно выполненной кровлей.

Похожие модели

Проект "Валерия" дом из оцилиндрованного бревна с террасой — Валентин — фото
Хит продаж
Валентин
Общая площадь дома 155.5 м²
Габариты здания 10х8.5
Профилированный брус 195х142 с чашками 79.2 м³
Количество жилых комнат 4
2 019 790 ₽
Подробнее
Проект "Валерия" дом из оцилиндрованного бревна с террасой — Игнат — фото
Игнат
Общая площадь дома 147.4 м²
Габариты здания 15х10.5
Профилированный брус 145х142 с чашками 56 м³
Количество жилых комнат 3
2 049 910 ₽
Подробнее