Работаем
ежедневно
без выходных
09:00 - 20:00
+7 (920) 157 8570
домокомплекты
+7 (919) 054 7326
пиломатериалы

Проект "Афродита" трехэтажный дом из бревна с бассейном и балконами

В данный момент наблюдаются проблемы со связью, для оперативного решения вопросов пишите в Whatsapp или Telegram
3 793 000 ₽
Общая площадь дома 428.7 м²
Габариты здания 15х7
Оцилиндрованное бревно 240 с чашками 157 м³
Количество жилых комнат 9
1 этаж
Парилка 6.5 м²
Терраса 7.8 м²
Терраса 13.1 м²
Гардеробная 2.9 м²
Тамбур 2.9 м2
Прихожая 17.9 м2
Гостиная 56.6 м2
Бассейн 22.7 м²
Комната отдыха 17.9 м²
Терраса 7.5 м²
С/у 3 м²
С/у 2.5 м²
Котельная 4.3 м²
Холл 3 м²
Кладовая 9.8 м²
Кухня 13.1 м²
Столовая 17.9 м²
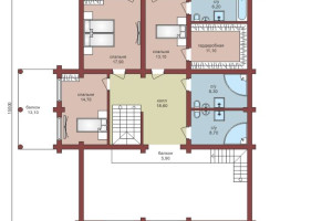
2 этаж
Балкон 13.1 м²
Спальня 17.9 м²
Спальня 13.1 м²
С/у 6.2 м²
Гардеробная 11.1 м²
С/у 8.3 м²
С/у 8.7 м²
Холл 18.6 м²
Балкон 5.9 м²
Спальня 14.7 м²
Балкон 6 м²
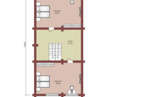
3 этаж
Спальня 32.2 м²
Спальня 35.5 м²
Холл 27.4 м²
Стоимость базового комплекта:
3 793 000 ₽
Возможно изготовление домокомплекта из любого сечения бруса и бревна.
Стоимость сборки: уточняйте. ( )
Базовый древесный комплект
Размер бруса Оцилиндрованное бревно 240 с чашками
Объем бруса 157
Лаги пола брус 2х50х200 (100х200) м.куб 16.32
Брусок 25х50 м.куб 1.7
Доска наката 25х150 (черновой пол) м.куб 12.42
Стропило доск 2х50х200 м.куб 11.64
Контрбрус 50х50 м.куб 1.25
Обрешетка доска 25х100 м.куб 5.35
Подкладочная  доска  50х200 (сосна) м.куб 1.2
Джут, рул 176
Нагель, п.м 800
Название Афродита оправдано изяществом линий, воздушностью форм и сложностью архитектуры. Перед вами дом из оцилидрованного бревна с мегабольшой гостиной с вторым светом и террасой, полноценной баней с довольно большим бассейном, просторной столовой и кухней, внушительной кладовой и специально отведенной котельной. Второй этаж предназначен для отдыха: три спальни, большой холл, гардеробная и 3 санузла.

Похожие модели

Проект  "Афродита" трехэтажный дом  из бревна с бассейном и балконами — Рауль — фото
Рауль
Общая площадь дома 428.7 м²
Габариты здания 17500
Профилированный брус 195х142 с чашками 161 м³
Количество жилых комнат 9
4 034 320 ₽
Подробнее
Проект  "Афродита" трехэтажный дом  из бревна с бассейном и балконами — Каррос — фото
Каррос
Общая площадь дома 157.5 м²
Габариты здания 17х11
Профилированный брус 195х142 с чашками 75 м³
3 640 450 ₽
Подробнее