Работаем
ежедневно
без выходных
09:00 - 20:00
+7 (920) 157 8570
домокомплекты, пиломатериалы
опилки и стружка

Проект "Людмила" из оцилиндрованного бревна с мансардой

В данный момент наблюдаются проблемы со связью, для оперативного решения вопросов пишите в Whatsapp или Telegram
1 781 025 ₽
Общая площадь дома 159.7 м²
Габариты здания 13100
Оцилиндрованное бревно 240 с чашками 73 м³
Количество жилых комнат 4
1 этаж
Гостиная 14.1 м²
Кухня-столовая 14.1 м²
Котельная 11.9 м²
Холл 6.3 м2
С/у 3.5 м2
Тамбур 5.7 м2
Прихожая 5.7 м²
Крыльцо 5.5 м²
Терраса 24.9 м2
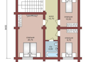
2 этаж
Спальня 20.7 м²
Холл 10.7 м²
С/у 4 м²
Спальня 9.7 м²
Спальня 10.5 м²
Стоимость базового комплекта:
1 781 025 ₽
Возможно изготовление домокомплекта из любого сечения бруса и бревна.
Стоимость сборки: уточняйте. ( )
Базовый древесный комплект
Размер бруса Оцилиндрованное бревно 240 с чашками
Объем бруса 73
Лаги пола брус 2х50х200 (100х200) м.куб 5.76
Брусок 25х50 м.куб 0.72
Доска наката 25х150 (черновой пол) м.куб 4.01
Стропило доск 2х50х200 м.куб 6
Контрбрус 50х50 м.куб 0.68
Обрешетка доска 25х100 м.куб 3
Подкладочная  доска  50х200 (сосна) м.куб 0.84
Джут, рул 81
Нагель, п.м 400