Работаем
ежедневно
без выходных
09:00 - 20:00
+7 (920) 157 8570
домокомплекты, пиломатериалы

Проект "Любава" двухэтажный дом из бревна с вторым светом и балконами

В данный момент наблюдаются проблемы со связью, для оперативного решения вопросов пишите в Whatsapp или Telegram
3 190 380 ₽
Общая площадь дома 310.4 м²
Габариты здания 19500
Оцилиндрованное бревно 240  с чашками 126.09 м³
Количество жилых комнат 6
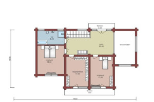
1 этаж
Сауна-душевая 14.2 м²
Комната отдыха 10.6 м²
Постир. 5.1 м²
С/у 2.1 м2
Холл 27.9 м2
Прихожая 12.1 м2
Гостевая 12.5 м²
Гардеробная 9.2 м2
Гостиная 41.1 м²
Кухня 17 м²
Столовая 13.1 м²
Терраса 9 м²
Терраса 24 м²
Терраса 19.2 м²
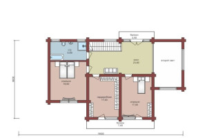
2 этаж
Спальня 19.6 м²
Холл 23.6 м²
С/у 5.6 м²
Балкон 3.5 м²
Спальня 17 м²
Гардеробная 17 м2
Стоимость базового комплекта:
3 190 380 ₽
Возможно изготовление домокомплекта из любого сечения бруса и бревна.
Стоимость сборки: уточняйте. ( )
Базовый древесный комплект
Размер бруса Оцилиндрованное бревно 240  с чашками
Объем бруса 126.09
Лаги пола брус 2х50х200 (100х200) м.куб 12.36
Брусок 25х50 м.куб 1.55
Доска наката 25х150 (черновой пол) м.куб 7.76
Стропило доск 2х50х200 м.куб 13.08
Контрбрус 50х50 м.куб 1.41
Обрешетка доска 25х100 м.куб 6.66
Подкладочная  доска  50х200 (сосна) м.куб 1.14
Джут, рул 147
Нагель, п.м 630

Похожие модели

Проект "Любава" двухэтажный дом  из бревна с вторым светом и балконами — Дом из бруса с террасой, проект "Кристов" — фото
Дом из бруса с террасой, проект "Кристов"
Общая площадь дома 310.4 м²
Габариты здания 19.5х13.5
Профилированный брус 195х142 с чашками 123 м³
Количество жилых комнат 6
3 258 045 ₽
Подробнее
Проект "Любава" двухэтажный дом  из бревна с вторым светом и балконами — Дом из бруса, проект "Леонардо" — фото
Дом из бруса, проект "Леонардо"
Общая площадь дома 114.2 м²
Габариты здания 8.0х8.5
Профилированный брус 195х142 с чашками 73 м³
Количество жилых комнат 3
2 938 950 ₽
Подробнее