Работаем
ежедневно
без выходных
09:00 - 20:00
+7 (920) 157 8570
домокомплекты
+7 (919) 054 7326
пиломатериалы

Проект "Карелия" двухэтажный дом из бревна с гаражом

В данный момент наблюдаются проблемы со связью, для оперативного решения вопросов пишите в Whatsapp или Telegram
2 635 215 ₽
Общая площадь дома 275.3 м²
Габариты здания 17.7х13.8
Оцилиндрованные бревно 220 с чашками 100 м³
Количество жилых комнат 6
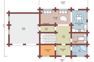
1 этаж
Гостиная 21.9 м²
Кухня-столовая 16.3 м²
Котельная 7.8 м²
Холл 13.9 м2
С/у 7.8 м2
Холл 4.8 м²
Прихожая 7.9 м²
Терраса 33.9 м2
Терраса 5.9 м²
Гараж 46.2 м²
2 этаж
Спальня 16.3 м²
Спальня 21.9 м²
С/у 12.8 м²
Холл 13.9 м²
Спальня 12.1 м²
Спальня 12.1 м²
Балкон 12 м2
Стоимость базового комплекта:
2 635 215 ₽
Возможно изготовление домокомплекта из любого сечения бруса и бревна.
Стоимость сборки: уточняйте. ( )
Базовый древесный комплект
Размер бруса Оцилиндрованные бревно 220 с чашками
Объем бруса 100
Лаги пола брус 2х50х200 (100х200) м.куб 7.68
Брусок 25х50 м.куб 0.96
Доска наката 25х150 (черновой пол) м.куб 4.8
Стропило доск 2х50х200 м.куб 6.72
Контрбрус 50х50 м.куб 0.6
Обрешетка доска 25х100 м.куб 4.2
Подкладочная  доска  50х200 (сосна) м.куб 0.9
Джут, рул 144
Нагель, п.м 550
Двухэтажный дом из оцилиндрованного бревна, собранный по проекту Калерия, удивит сходством со швейцарскими шале. Двускатная кровля с одной стороны накрывает гараж, за счет чего продлена буквально до земли. Крытая терраса и балкон спрятаны под фронтоном. Планировка предполагает все необходимое: котельную для круглогодичного использования, кухню-столовую, гостиную, холл, 4 спальни, гостевую комнату и санузел на каждом этаже.